Cardiff Arena

Cardiff Arena

Project Information

Client: Robertson Property, Live Nation, Oak View Group
Partners: Arup, WSP, Populous, HOK Architects, Turner & Townsend
Location: Cardiff
Service: Landscape Architecture

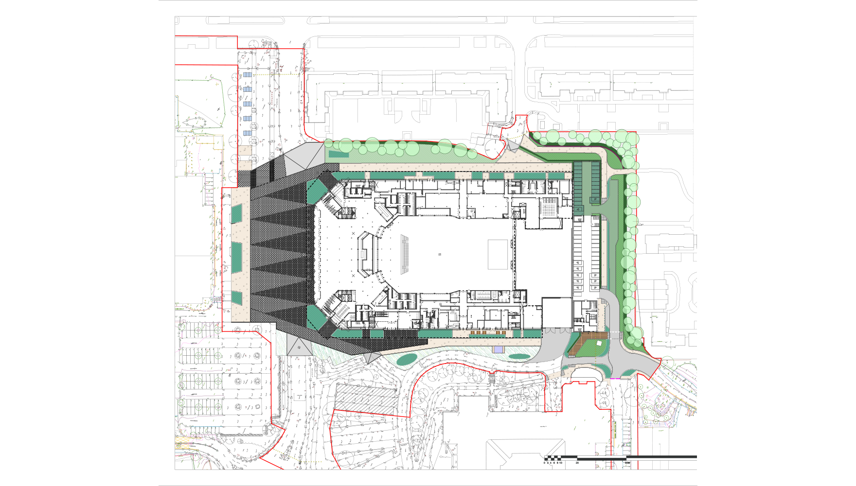
A highly complex scheme for a 17,500 arena, which is to be part of an ambitious redevelopment programme.

The Challenge

Our brief was to secure a fully coordinated and consulted planning application within a relatively short programme. The scheme incorporated significant technical challenges which included the security and safety of visitors, loss of designated open space and a complex SuDS strategy.

Our Role

We coordinated the detailed of the Arena with our masterplanning team working on Atlantic Wharf so the proposals were linked into the wider longer term strategy for the area, while being simultaneously coordinated with details such as door thresholds and interception of rainwater from the building.

The Outcome

The outcome was a fully coordinated Full Planning Applicaiton that included raingardens, a major entrance plaza, and coordination of site boundaries. We worked closely with the architects to ensure that the practical and aesthetic elements of the landscape design were adding value to the overall development proposals.


Ready to work together?

We are more than happy to discuss any project, any size, at any time.